Jammstraße 9 Lahr

Wohnanlage mit Kita und Außenspielplatz

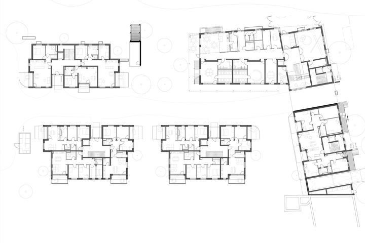
Die Wohnanlage entsteht auf einem freigewordenen Grundstück in fußläufiger Lage zum Stadtzentrum von Lahr, auf dem zuvor ein eingeschossiger Bürobau und einfache Nachkriegswohnhäuser standen. Nach deren Abbruch konnte hier Platz für 53 geförderte Mietwohnungen mit unterschiedlichen Anforderungen geschaffen werden. Zwei Wohngruppen für betreutes Wohnen und eine integrierte Kindertagesstätte ergänzen hier das Wohnraumangebot.

Entlang der Jammstraße nehmen Haus 1 und Haus 2 in blockrandabschließender Weise die Maßstäblichkeit und Gliederung der Lahrer Innenstadt auf. Ein großzügig bemessener Durchgang führt vom Straßenraum in den Hofbereich, zu drei freistehenden Hofhäusern mit Attikageschoss.

Die Fertigstellung wird in Kürze erwartet!